Baue zuerst die beiden Seitenwände. Bohre dazu in beide Platten (2) jeweils 4 Schraubenlöcher auf jeder schmalen Seite mit Ø 4 mm und mit einem Abstand zum Rand der kurzen Seiten von 20 mm; die Abstände zum Rand der langen Seiten betragen 65 mm auf der einen Seite und 25 mm auf der anderen. Lege die erste Platte (2) aussen bündig und mit einem Versatz von 47 mm auf die flache Seite der beiden ersten Kanthölzer (1). Verschraube die Platte mit Senkkopfschrauben 4,0x30 mm mit den Kanthölzern. Verfahre so auch mit der zweiten Platte (2) und den beiden übrigen Kanthölzern (1).
Mähroboter Garage: Das brauchst Du
Mähroboter Garage vorbereiten
Die Mähroboter-Garage bekommt ein stabiles Gehäuse aus Kanthölzern und Siebdruckplatten. Darauf werden Rhombusleisten als Verkleidung montiert. Das Garagendach wird mit Teichfolie ausgekleidet und so zur Pflanzschale. Mit einem Abfluss verhinderst Du Staunässe an den Pflanzenwurzeln.
Die Platten lassen sich am einfachsten mit einer Handkreissäge mit Führungsschiene zuschneiden. Die Kanthölzer und Rhombusleisten werden mit einer Kappsäge auf die richtige Länge zugeschnitten. Schraubverbindungen werden vorgebohrt und gesenkt, damit die Schraubenköpfe später nicht überstehen.
Streich die zugeschnittenen Kanthölzer vor dem Zusammenbau mit einem Wetter- und UV-Schutzmittel.
Garage auf Deinen Mähroboter zuschneiden
Die Bauart dieser Mähroboter-Garage muss zu Deinem Mähroboter passen. Für Mähroboter, die seitlich einparken, ist die Garage in dieser Form nicht geeignet. Auch die angegebenen Masse in dieser Bauanleitung solltest Du abgleichen, damit Dein Mähroboter mit seiner Ladestation am Ende bequem in die Mähroboter-Garage passt.
Achte beim Verlegen des Begrenzungskabels darauf, dass der Mähroboter beim Ein- und Ausparken nicht die Garage berührt.

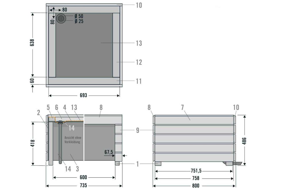
| Nr. | Stück | Materialzuschnitte |
|---|---|---|
| 1 | 4 | Kantholz 40x60x418 mm |
| 2 | 2 | Siebdrucksperrholzplatte 8x751,5x418 mm |
| 3 | 1 | Siebdrucksperrholzplatte 8x722x418 mm |
| 4 | 1 | Siebdrucksperrholzplatte 8x751,5x680 mm |
| 5 | 2 | Kantholz 40x60x751,5 mm |
| 6 | 2 | Kantholz 40x60x560 mm |
| 7 | 10 | Rhombusleiste 21x68x758 mm |
| 8 | 1 | Rhombusleiste 21x68x735 mm |
| 9 | 8 | Rhombusleiste 21x68x67,5 mm |
| 10 | 6 | Rhombusleiste 21x68x735 mm |
| 11 | 2 | Rhombusleiste 21x60x693 mm |
| 12 | 2 | Rhombusleiste 21x60x638 mm |
| 13 | 1 | Teichfolie 0,5x1000x1000 mm* |
| 14 | 1 | Siebdrucksperrholzplatte 8x100x100 mm |
*Endgültiger Zuschnitt bei Montage
Gehäuse bauen
Seitenwände der Mähroboter-Garage bauen
Ablauföffnung bohren und Dach montieren
An der Platte (4) wird später der Wasserablauf montiert. Bohre dazu eine Ablauföffnung mit Ø 50 mm in die Platte mit einem Abstand von jeweils 80 mm zu den zwei Aussenkanten. Bohre anschliessend die Schraubenlöcher mit Ø 4 mm vor mit jeweils 20 mm Abstand zu den Aussenkanten.
Stell die fertigen Seitenwände mit einem Helfer auf. Richte dazwischen die Platte (4) ringsum bündig auf den Kanthölzern (1) aus. Verschraube die Platte mit Senkkopfschrauben 4,0x30 mm mit den Kanthölzern.
Gehäuserückwand der Mähroboter-Garage montieren
Nun wird die Gehäuserückwand (3) montiert. Bohre dazu rechts und links vier Schraubenlöcher mit Ø 4 mm und einem Abstand von 26 mm zur Aussenkante vor. Verschraube die Rückwand mit Senkkopfschrauben 4,0x30 mm von hinten mit den Kanthölzern (1).
Rahmenhölzer verkleben & Rhombusleisten sägen
Die Rahmenhölzer (5) und (6) werden mit der Platte (4) und den Seitenwänden (2) verklebt – verwende dafür wasser- und UV-beständigen Montagekleber für den Aussenbereich. Halte Dich an die Angaben zu Verarbeitung und Aushärtezeit im Datenblatt des Klebers.
Lass den Kleber aushärten. In der Zwischenzeit können die Rhombusleisten für die Verkleidung der Seitenwände zugesägt werden (ohne Abb.). Die Leisten (7) für die beiden Seitenwände sind gleich lang. Die Leisten (8) und (9) für die Vorderseite sowie die Leisten (10) für die Rückseite überdecken die Leisten der Seitenwände.
Alternativ können die Leisten auf Gehrung, also im 45°-Winkel geschnitten und zusammengefügt werden. Für diese Verbindungstechnik werden die Längen der einzelnen Leisten an die Montageart angepasst: Breite Aussenwand = Länge kurze Seite der Rhombusleiste.
Verkleidung der Mähroboter-Garage anbringen
Erste Rhombusleiste ankleben
Sind alle Rhombusleisten (7–10) zugeschnitten? Dann klebe die erste Leiste (10) mit Montagekleber auf die Rückwand, oben beginnend – die Leiste steht auf beiden Seiten und oben jeweils 21 mm über. Der obere Überstand ist nötig, weil später Leisten in dieser Stärke dahinter eingesetzt werden. Lass den Kleber mindestens zwei Stunden aushärten, dann ist eine Anfangsfestigkeit erreicht.
Tipp zum Kleben
Zum Verkleben der Leisten kannst Du das Gehäuse auf die Seite legen.
Abstandhalter zuschneiden
Rhombusleisten werden immer mit einem Leistenabstand montiert. Für die Montage der fünf Leisten benötigst Du vier Abstandhalter. Schneide die Abstandhalter aus einer 9 mm dicken MDF-Platte auf das Mass 690x40 mm zu.
Weitere Rhombusleisten ankleben
Klebe nun die vier übrigen Rhombusleisten (10) auf die Rückwand – mit je einem Abstandhalter dazwischen. So erhältst Du ohne grossen Aufwand eine gleichmässige Fläche. Lass den Kleber so lange aushärten, bis eine Anfangsfestigkeit erreicht ist und sich die Leisten nicht mehr verschieben können. Erst danach die Abstandshalter entfernen.
Seitenwände der Mähroboter-Garage verkleiden
Verkleide die beiden Seitenwände nach dem gleichen Prinzip mit den Rhombusleisten (7): oben mit 21 mm Überstand, vorne bündig mit der Gehäusevorderseite und auf Stoss mit den Leisten der Rückwand (10).
Garageneinfahrt verkleiden
Montiere die oberste Rhombusleiste (8) an der Vorderseite – sie überdeckt die seitlichen Leisten (7) auf beiden Seiten und schliesst oben bündig mit ihnen ab. Wenn diese Leiste fest verklebt ist, werden die beiden Streifen neben der Garageneinfahrt verkleidet. Verklebe die kurzen Rhombusleisten (9) reihenweise mithilfe der Abstandhalter, aussen bündig mit den seitlichen Leisten (7). Lass anschliessend den Kleber aushärten.
Tipp: Rhombusleisten schützen
Rhombusleisten aus Lärchenholz benötigen keinen zusätzlichen Anstrich. Sie vergrauen allerdings im Laufe der Zeit. Um das zu vermeiden, können die Leisten mit einem Anstrich geschützt werden.
Entwässerung der Mähroboter-Garage vorbereiten
A) Schneide eine Holzplatte (14) mit den Massen 100x100 mm zu und bohre mittig ein Loch mit Ø 25 mm. Setze das Schlauchanschlussstück mit der Gewindeseite von unten in die Bohrung.
B) Klebe die Holzplatte (14) mit Montagekleber von unten so an die Platte (4), dass das Schlauchanschlussstück mit dem Gewinde mittig in der Bohrung von Platte (4) sitzt. Entferne das Anschlussstück wieder, bevor der Kleber aushärtet.
Teichfolie ausbringen und Gartenschlauch anschliessen
Schneide die Teichfolie (13) so gross zu, dass sie sich in die Vertiefung und seitlich über die Leisten (5) und (6) legen lässt. Fixiere die Folie mit dem Tacker auf den Leisten. Trenne anschliessend die Überstände mit einem Cuttermesser ab und schneide mit einem Kreuzschnitt die Öffnung für den Ablauf in die Folie.
Verschraube nun von unten das Schlauchanschlussstück. Steck von unten ein Stück Gartenschlauch mit Schlauchklemme auf die Schlauchtülle und ziehe die Schlauchklemme handfest an. Führe den Schlauch (später) an der Rückseite nach aussen.
Folienrand mit Leisten abdecken und bepflanzen
Abschliessend wird der Folienrand mit einem Rahmen aus Rhombusleisten abgedeckt. Schneide dazu mit der Tischkreissäge die schrägen Kanten der Rhombusleisten ab – Schiebestock verwenden! Danach sind die Leisten noch 60 mm breit. Verklebe die Leisten mit der Innenseite der überstehenden Rhombusleisten.
Das Garagendach kannst Du anschliessend mit Kies und pflegeleichten Steingartenpflanzen gestalten.
Tipp: Statt Rhombusleisten Vierkantleisten nutzen
Hast Du keine Tischkreissäge zur Verfügung? Dann kannst Du für den oberen Abdeckrahmen statt der zugeschnittenen Rhombusleisten normale Vierkantleisten verwenden. Der Nachteil dabei: Das Holz ist nicht identisch mit der seitlichen Verkleidung und es muss je nach Holzart mit einer schützenden Lasur gestrichen werden.
Mähroboter Garage bepflanzen
Deine Mähroboter Garage ist fertig, jetzt kannst Du sie bepflanzen. Besonders gut geeignet sind Steingartenpflanzen. Wichtig bei Steingartenpflanzen: Mische die Erde mit etwas Sand, damit die Durchlüftung gewährleistet ist – denn die Pflanzen hassen nichts mehr als Staunässe.
Im besten Fall bepflanzt Du Deine Mähroboter Garage im Frühjahr. So haben die Pflanzen genug Zeit, bis zum nächsten Winter starke Wurzeln zu bilden.























