Commence par construire les deux parois latérales. Perce dans chacun des deux panneaux (2) 4 trous de vis de Ø 4 mm sur chaque côté court et à une distance de 20 mm du bord des côtés courts; les distances par rapport au bord des côtés longs sont de 65 mm d’un côté et de 25 mm de l’autre. Pose le premier panneau (2) à fleur à l’extérieur et avec un décalage de 47 mm sur le côté plat des deux premiers bois équarris (1). Visse le panneau sur les bois équarris avec des vis à tête fraisée de 4,0 x 30 mm. Procède de la même manière avec le deuxième panneau (2) et les deux autres bois équarris (1).
Garage à tondeuse robot: ce dont tu as besoin
Préparer le garage à tondeuse robot
Le garage à tondeuse robot est constitué d'un châssis stable en bois équarri et de plaques de sérigraphie. Des lattes en losange sont montées dessus pour l’habiller. Le toit du garage est recouvert d’une bâche pour bassin et se transforme ainsi en bac à plantes. Avec une évacuation, tu évites l’eau stagnante au niveau des racines des plantes.
La découpe des panneaux est plus simple avec une scie circulaire portative munie d'un rail de guidage. Coupe les bois équarris et les lattes en losange à la bonne longueur à l’aide d'une scie à onglet. Les raccords à visser sont pré-percés et fraisés afin que les têtes de vis ne dépassent pas.
Applique un produit de protection contre les intempéries et les UV sur les bois équarris avant de les assembler.
Découper le garage en fonction de ta tondeuse robot
Le type de construction de ce garage à tondeuse robot doit être adapté à ta tondeuse robot. Pour les tondeuses robots qui se garent latéralement, le garage ne convient pas sous cette forme. Il est également conseillé de vérifier les dimensions indiquées dans ces instructions de montage afin de s’assurer que ta tondeuse robot et sa station de charge trouvent facilement leur place dans le garage.
Lors de la pose du câble périphérique, veille à ce que la tondeuse robot ne touche pas le garage en entrant ou en sortant.

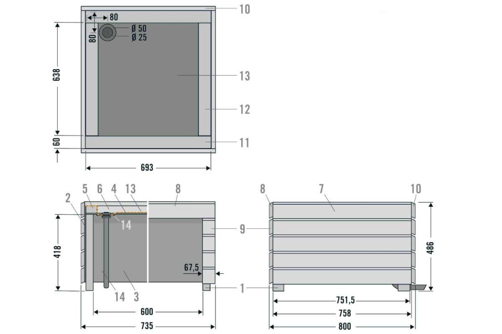
| N° | Pièce | Découpes de matériaux |
|---|---|---|
| 1 | 4 | Bois équarri 40x60x418 mm |
| 2 | 2 | Panneau de contreplaqué sérigraphié 8 x 751,5 x 418 mm |
| 3 | 1 | Panneau de contreplaqué sérigraphié 8 x 722 x 418 mm |
| 4 | 1 | Panneau de contreplaqué sérigraphié 8 x 751,5 x 680 mm |
| 5 | 2 | Bois équarri 40x60x751,5 mm |
| 6 | 2 | Bois équarri 40x60x560 mm |
| 7 | 10 | Latte en losange 21 x 68 x 758 mm |
| 8 | 1 | Latte en losange 21 x 68 x 735 mm |
| 9 | 8 | Latte en losange 21 x 68 x 67,5 mm |
| 10 | 6 | Latte en losange 21 x 68 x 735 mm |
| 11 | 2 | Latte en losange 21 x 60 x 693 mm |
| 12 | 2 | Latte en losange 21 x 60 x 638 mm |
| 13 | 1 | Bâche pour bassin 0,5 x 1000 x 1000 mm* |
| 14 | 1 | Panneau de contreplaqué sérigraphié 8 x 100 x 100 mm |
*Découpe définitive lors du montage
Construire le châssis
Construire les parois latérales du garage à tondeuse robot
Percer le trou d’évacuation et monter le toit
L’évacuation de l’eau sera montée ultérieurement sur le panneau (4). Perce un trou d’évacuation de Ø 50 mm dans le panneau, à une distance de 80 mm de chacun des deux bords extérieurs. Perce ensuite les trous de vis de Ø 4 mm en respectant un espace de 20 mm par rapport aux bords extérieurs.
Avec l’aide d'une seconde personne, pose les deux parois latérales terminées. Aligne le panneau (4) entre les deux, à fleur des bois équarris (1). Visse le panneau sur les bois équarris avec des vis à tête fraisée de 4,0 x 30 mm.
Monter la paroi arrière du châssis du garage à tondeuse robot
Il faut maintenant monter la paroi arrière du châssis (3). Perce à droite et à gauche quatre trous de vis de Ø 4 mm, à une distance de 26 mm du bord extérieur. Visse la paroi arrière avec des vis à tête fraisée 4,0 x 30 mm par l'arrière sur les bois équarris (1).
Coller les bois du cadre & scier les lattes en losange
Colle les bois du cadre (5) et (6) au panneau (4) et aux parois latérales (2) – utilise pour cela une colle de montage résistante à l’eau et aux UV pour une utilisation en extérieur. Respecte les indications relatives à la fabrication et au temps de prise figurant sur la fiche technique de la colle.
Laisser la colle durcir. Pendant ce temps, tu peux scier les lattes en losange pour l'habillage des parois latérales (sans ill.). Les lattes (7) pour les deux parois latérales sont de la même longueur. Les lattes (8) et (9) pour la face avant et les lattes (10) pour la face arrière recouvrent les lattes des parois latérales.
Il est également possible de couper les lattes en onglet, c’est-à-dire à un angle de 45°, et de les assembler. Pour cette technique d'assemblage, adapte les longueurs des différentes lattes au type de montage: largeur de la paroi extérieure = longueur du côté court de la latte en losange.
Poser l’habillage du garage à tondeuse robot
Coller la première latte en losange
Toutes les lattes en losange (7-10) sont-elles coupées? Colle dans ce cas la première latte (10) sur la paroi arrière avec de la colle de montage, en commençant par le haut – la latte dépasse de 21 mm de chaque côté et en haut. Le débordement supérieur est nécessaire car des lattes de cette épaisseur seront placées derrière par la suite. Laisse la colle durcir pendant au moins deux heures, après quoi une résistance initiale sera atteinte.
Conseil pour le collage
Pour coller les lattes, tu peux mettre le châssis sur le côté.
Découper les entretoises
Monte toujours les lattes en losange avec un espacement entre elles. Pour le montage des cinq lattes, il te faut quatre entretoises. Découpe les entretoises dans un panneau MDF de 9 mm d’épaisseur aux dimensions 690 x 40 mm.
Coller d’autres lattes en losange
Colle les quatre autres lattes en losange (10) sur la paroi arrière – avec une entretoise entre chacune d'elles. Tu obtiendras ainsi une surface uniforme sans trop de difficultés. Laisse la colle durcir jusqu’à ce qu’une résistance initiale soit atteinte et que les lattes ne puissent plus bouger. Ne retirer les entretoises qu’à ce moment-là.
Habiller les parois latérales du garage à tondeuse robot
Habille les deux parois latérales de la même façon avec les lattes en losange (7): en haut avec un débordement de 21 mm, à l’avant à fleur de la face avant du châssis et en butée avec les lattes de la paroi arrière (10).
Habiller l’entrée du garage
Monte la latte en losange supérieure (8) sur la face avant – elle recouvre les lattes latérales (7) des deux côtés et s’aligne avec elles en haut. Une fois cette latte solidement collée, habille les deux bandes à côté de l’entrée du garage. Colle les lattes en losange courtes (9) les unes après les autres à l’aide des entretoises, en les faisant affleurer à l’extérieur avec les lattes latérales (7). Laisse ensuite la colle durcir.
Conseil: protéger les lattes en losange
Les lattes en losange en bois de mélèze ne nécessitent pas de peinture supplémentaire. Toutefois, elles deviennent grises au fil du temps. Pour éviter cela, tu peux protéger les lattes avec une peinture.
Préparer le drainage du garage à tondeuse robot
A) Découpe un panneau de bois (14) de 100 x 100 mm et perce un trou de 25 mm de diamètre au centre. Introduis le raccord de tuyau avec le côté fileté par le bas dans le trou.
B) Colle le panneau en bois (14) avec de la colle de montage par en dessous sur le panneau (4) de manière à ce que le raccord de tuyau avec le filetage soit centré dans le trou du panneau (4). Retire à nouveau le raccord avant que la colle ne durcisse.
Étaler la bâche pour bassin et raccorder le tuyau d'arrosage
Découpe la bâche pour bassin (13) de manière à ce qu’elle puisse être placée au fond du creux et au-dessus des lattes (5) et (6) sur les côtés. Fixe la bâche sur les lattes à l’aide de l’agrafeuse. Découpe ensuite la partie qui dépasse avec un cutter et effectue une découpe en croix pour créer l'ouverture de l'évacuation dans le film.
Visse à présent le raccord de tuyau par en dessous. Fixe par en dessous un morceau de tuyau d’arrosage avec un collier de serrage sur l’embout du tuyau flexible et serre le collier de serrage à la main. Passe le tuyau (plus tard) par l’arrière vers l’extérieur.
Recouvrir le bord de la bâche avec des lattes et végétaliser
Pour finir, le bord de la bâche est recouvert d'un cadre en lattes en losange. Coupe les bords obliques des lattes en losange avec la scie circulaire sur table – utilise le poussoir de sécurité! Les lattes ont ensuite encore une largeur de 60 mm. Colle les lattes à l’intérieur des lattes en losange qui dépassent.
Tu peux ensuite aménager le toit du garage avec du gravier et des plantes de rocaille faciles à entretenir.
Conseil: utiliser des lattes carrées plutôt que des lattes en losange
Tu n’as pas de scie circulaire sur table à disposition? Tu peux alors utiliser des lattes carrées normales pour le cadre supérieur au lieu des lattes en losange découpées. L’inconvénient est que le bois n’est pas le même que celui de l’habillage latéral et qu'il doit être recouvert d’une lasure de protection, en fonction du type de bois.
Végétaliser le garage à tondeuse robot
Ton garage à tondeuse robot est prêt, tu peux maintenant le végétaliser. Les plantes de rocaille conviennent particulièrement bien. Important pour les plantes de rocaille: mélange la terre avec un peu de sable afin de garantir l’aération – car les plantes ne détestent rien de plus que l’eau stagnante.
Dans le meilleur des cas, tu végétalises ton garage à tondeuse robot au printemps. Les plantes ont ainsi suffisamment de temps pour former des racines solides jusqu’à l’hiver suivant.























